53㎡居然还有浴缸?空间魔术变出80㎡居住感
“空间”是一种相对模糊的感受,是人、空间、物体对应的直观体验,如同人对于温度的感受各有不同。但是,空间与功能的规划能力对于一个设计师极大的考验,在受限的框架下如何将生活居家因着每个居住者不同生活习惯进行规划,在规划过程中一定有优先顺序与取舍的考量。同时,每个居住者对于需要的居家氛围需求也有所不同。这就是所谓的一种米养百样人各有各的不同,没有绝对的对错,只有相对的适合。也充分体现住宅设计的个性化与商业公装设计不同之处。特别是对于紧凑户型要给到“刚好”的尺寸与锱铢必较的预算分配,对于设计师是非常具有挑战性的。
项目基本概述
业主买下这套位于一楼的53平米一室户型,看重在寸土寸金的上海,有个能种菜养花的小花园。期待着周末假日邀请三五好友一起在这个小花园餐聚烤肉,有点小确幸的生活品质。也许是当时注重花园,并未考虑其他生活习惯上未来是否可以规划。殊不知小户型对于空间格局的可改造性挑战是极高的。
当我们接下这个任务,进到现场勘查丈量进入眼帘的是唯一能大面积采光的从客厅出花园的移门,无法照顾到玄关入口处的厨房光线。卧室的面积相对较大,而餐厅与玄关入户动线相连,看似很开阔只是为了方便房屋的销售,实际对于后期平面格局的布局是个挑战。
在设计前与业主进行了基本的沟通。内容如下:
1.一只宠物小狗
2.经常有朋友餐聚
3.希望有一个浴缸(可以放弃淋浴房)
4.预算有限(不需要更换铝门窗,预算排挤下可以采用壁挂式空调,放弃中央空调)
5.未来几年后有可能出租或转售
6.希望预留一间临时客房
7.整体希望相对男性化一点,有氛围感。
依照业主的基本需求,以及现场的环境状况我们整体的设计依据以男性化的氛围及确保业主未来出租或转售的生活机能安排,开始平面规划设计。
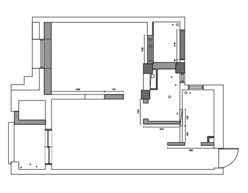
原始结构图

拆除图

新建墙图

平面的重要性
平面规划的重点是透过墙体拆除与新建目的是为了采用延长、缩短、内凹龛、角度调整方法,改变空间的属性使空间更符合居住者的生活功能需求。(当然是需要符合规范的)
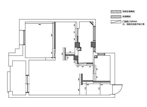
53㎡的平面规划介绍
介绍一下这个项目的平面规划,从入门口开始过道的右侧封闭了原有厨房的门洞创造出一个完整的延长面,在延长了入门过道的长度为未来储物的功能尺寸设定,同时,进行凸退层的设计手法,也创造了一个餐桌的预留空间。进入过道后到客厅的右侧透过客厅短墙面的局部拆除,创造出一个主卧室适合的空间尺度以及预留了未来备餐柜的位置。在备餐柜的反面留出了客房(储物间)的空间,并且,在客房与浴室连接的墙面新增了一道端墙为设定浴室开窗与天井产生对流通风预留位,这就是平面布局的重要性,这也是设计师多年经验累积后的设计思考。(注:这些平面的构成都是在反复与客户沟通过后的结果)
平面布局(含功能说明)

单点透视效果图

在上方的平面配置上可以清楚的说明生活功能的配置,下面我们透过O.A.O空间联合的设计师在平面布局的设计思考与设计点。
01 入门玄关
开启大门,有男性代表沉稳的靛蓝色延伸至阳台的整面墙壁,作为公共空间的大主色调, 稳定整个空间的色彩,也为“室外的动”到“室内的静”做切换,配合原本建筑2.5米的层高,玄关开始采用反射光源暗藏灯带的照明方式,着重点亮入门的鞋柜区及墙壁的挂画,由玄关开始营造有故事的家。换鞋凳、临时挂衣区,鞋子收纳、行李箱收纳、工具收纳、临时放包区、每一个出入门需要的动作和物品,都融合在入门口完成。
在设计选材中,考虑居住环境为潮湿水多的一楼,我们选择了仿水磨石花纹的深灰色瓷砖,在控制预算的同时以餐桌位置为界限划分出玄关与室内的位置,抬高玄关柜体下侧20公分用于室外鞋放置,在清扫和多人入户中提供方便。

02 餐厅
从无处安放的餐桌,到整屋动线的核心,餐厅无论是作为美食饱腹或是文化交流都提供非常重要场所的作用,为餐桌三边留出最少1米的动线空间,同时,也满足业主喜欢三五好友来餐聚的习惯。我们选用意大利灰大理石作为餐桌定制了适合空间最大尺寸的台面,最大可提供6人聚餐小酌。无论是餐盘众多的西餐,还是碗碟重重热气腾腾的火锅,都能轻松摆放。
餐边柜作为餐厅中的收纳用具,不仅可以完成简单的早餐,也可以收纳常用的干货零食,调羹和餐具。餐桌台面同时延伸至玄关台面,一物多用,不仅节约预算,也使得不大的空间更加整体性,配合3000K的窄束脚筒灯,粗糙的红砖墙面在灯光中留下时间的痕迹。酒杯中你回到了儿时的弄堂里,还是去到了机器轰鸣的工厂栅栏外?



03 主卧
如果不是打开衣柜的门(请详见视频),你能想到顶、地梁被藏在其中吗?米白色的榻榻米和衣柜,用色彩扩大了主卧面积,设计中我们不放过一点收纳的可能性,窗台改造的小桌台在窗帘下方下陷2公分遮光。榻榻米四周的掀板和抽屉都可以用来分别放置不同种类和季节的衣物用品。设计师贴心的将抽屉下沿抬高8公分,免去会磕碰的拉手,也为拖鞋收纳放置找好了位置。增加更多的储物收纳空间,也减少了后期采购软装的费用。只需要一张床垫,就可以啦!

04 卫生间与厨房
延续客餐厅的整体氛围,采用了深灰色浅凹凸感的亚光面瓷砖,在厨房与卫生间大量使用,增加防滑效果也方便清洗打理,卫浴五金和厨房五金,黑色磨砂手感在水渍较多的空间更不易留下痕迹,也在白色系的墙面砖背景中,点缀出设计者重视生活品质的设计追求。卫生间设计订做的镜柜让台面的清洁更方便,台盆柜下预留的脏衣篮收纳区,也使得狭长的卫生间更少一些磕碰。
厨房中我们特别为垃圾桶找了一个“家”,在管道井占用的30公分柜体内,我们在柜体下留出了垃圾桶的摆放位置,充分利用了小空间,在厨房来回走动的操作中,保证安全和清洁。


更多的软装搭配小技巧和硬装设计细节,欢迎大家点击下面的视频观看哦!
项目名称:上海南山雨果
项目地点:上海市青浦区
项目面积:53㎡
设计团队:O.A.O空间联合设计团队
主创设计:詹捷
空间配色:詹捷/皮敦伟
软装陈设:詹捷/皮敦伟
项目管理:皮敦伟
相关知识
53㎡居然还有浴缸?空间魔术变出80㎡居住感
冬日能温暖你的不止是阳光,还有法恩莎浴缸
环保家装“必备神器” 大自然53°白瓷砖大体检
一家两口居住,父母有时候会过来居住,喜欢现代
活动空间非常活跃且不失现代高贵感
超实用的家居好物,每款都能让居住幸福感爆棚!
案例:浴缸不规则运用 冲击舒适沐浴极限
卫生间里适不适合装浴缸 出现这3种情况就不行
动线合理,采光通透,给屋主带来极大居住感和独
精致卫浴空间 打造富有生活感的体验
网址: 53㎡居然还有浴缸?空间魔术变出80㎡居住感 http://www.zhuangxiutp.com/newsview33390.html
推荐装修资讯
- 1除了榻榻米床柜一体设计,这3 7048
- 2写拆字的房子多久会拆 拆字为 6720
- 3干湿分离卫生间尺寸 小卫生间 5797
- 4明日之后漂亮房子教程是什么 4416
- 5小改变大有不同,小熊电器煮蛋 4097
- 6手上有胶水怎么去掉 胶水 3994
- 7红厨品牌进口锅具热降温国内品 3936
- 8盼盼木门加盟条件 盼盼木门有 3645
- 9国外这些橱柜内部设计完爆国内 3445
- 10定制周刊|2022「发现中国 3362
