装修美图 | 仁恒美林郡 151 平米新古典风格品味优雅生活 (6)张
来源: 时间:2020年04月20日 06:21
蒋学友(高级设计师)主要作品天庆嘉园 飞天家园 电力小区 实创现代城 曦华源小区 雁滩科教城 刘家峡电厂 仁恒晶城 阳光家园等从业年龄毕业院校工作经历
客厅
客厅
客厅
卧室
客厅
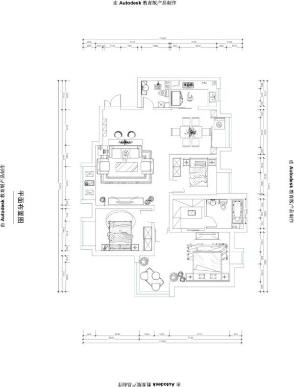
户型图兰州峰翼工作室城市:兰州地址:城关区双城门什字陇华大厦二楼介绍:兰州峰翼高端工作室拥有精英设计师,曾多次在家装设计大赛中获得各种奖项。他们凭借昂扬的工作热情,在实践中不断进取,将独到的设计理念和对国际设计潮流的敏感,来融汇中国的传统文化,让设计不再只是点、线、面。
最优秀的团队,最具风格的理念,最精湛完美的设计,公司品牌的实力规模,精良的专业施工,无微不至的售后服务,为客户打造高品质的家居生活,为您达成内心的梦想,让您的家与众不同!
更多案例相关知识
装修美图 | 仁恒美林郡 151 平米新古典风格品味优雅生活 (6)张
装修美图 | 银珠家园 142 平米新古典风格崇尚欧风格 (6)张
设计案例 | 中海凯旋门 137 平米其他简欧舒适 (6)张
装修美图 | 银珠家园 0 平米现代风格明媚活泼 (5)张
装修美图 | 融侨城 158 平米新中式风格新中式 (5)张
装修美图 | 阳光怡园 136 平米新古典风格雅致主义 (6)张
装修美图 | 阳光怡园 92 平米新古典风格沉稳大气 (7)张
金隅翡丽铂爵郡170平西式古典风格效果图设计
家居美图 | 阳光怡园 92 平米新古典风格沉稳大气 (7)张
装修美图 | 中海凯旋门 500 平米新古典风格素雅大气 (8)张
网址: 装修美图 | 仁恒美林郡 151 平米新古典风格品味优雅生活 (6)张 http://www.zhuangxiutp.com/newsview36288.html
推荐装修资讯
- 1除了榻榻米床柜一体设计,这3 7048
- 2写拆字的房子多久会拆 拆字为 6720
- 3干湿分离卫生间尺寸 小卫生间 5797
- 4明日之后漂亮房子教程是什么 4416
- 5小改变大有不同,小熊电器煮蛋 4097
- 6手上有胶水怎么去掉 胶水 3994
- 7红厨品牌进口锅具热降温国内品 3936
- 8盼盼木门加盟条件 盼盼木门有 3645
- 9国外这些橱柜内部设计完爆国内 3445
- 10定制周刊|2022「发现中国 3362
装修资讯热点排名
装修资讯热点
