北欧
来源: 时间:2020年05月12日 10:01
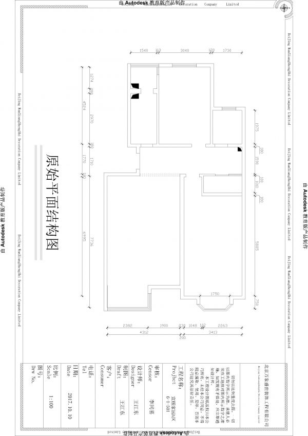
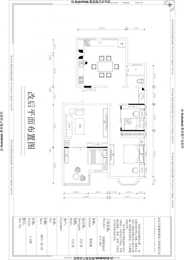
案例详情 业主需求:此房屋平时居住两个老人,年轻人偶尔回来居住一下,两个老人平时都在自己卧室活动,都必须要求向阳,年轻人喜欢看书。逢年过节都要与老人一起在这个屋子度过。设计理念:两个老人都要向阳的房子,平时又在卧室活动,所以设计把原客厅分隔一部分做卧室用,新建卧室采用玻璃推拉门隔断,不影响客厅采光。年轻人喜欢看书,所以在原卧室隔出一间书房,书房留有一张单人床,供年轻人偶尔居住,另外客厅用沙发床,偶尔再多一个人居住还是够用的。那么接下来解决逢年过节人口多吃饭问题了,所以把原有次卧室与厨房连接墙体拆除,做成开放式厨房,留有一个大空间厨房。业主在风格上要求是只要简约就行,我看年轻人穿着打扮,设计为北欧风格。预算说明:电线品牌:昆仑,水管品牌:联塑。墙面辅料:美巢墙尼,美巢腻子粉。地面地板为上海福尼亚硅藻泥甲醛0排放强化复合地板。
相关知识
北欧
现代北欧
北欧风格
北欧风格案例
牡丹园 北欧风格
110平米的北欧风格
精致的小北欧
112平北欧三居室
静安里 北欧风格
北欧混搭风
网址: 北欧 http://www.zhuangxiutp.com/newsview37985.html
推荐装修资讯
- 1除了榻榻米床柜一体设计,这3 7048
- 2写拆字的房子多久会拆 拆字为 6720
- 3干湿分离卫生间尺寸 小卫生间 5797
- 4明日之后漂亮房子教程是什么 4416
- 5小改变大有不同,小熊电器煮蛋 4097
- 6手上有胶水怎么去掉 胶水 3994
- 7红厨品牌进口锅具热降温国内品 3936
- 8盼盼木门加盟条件 盼盼木门有 3645
- 9国外这些橱柜内部设计完爆国内 3445
- 10定制周刊|2022「发现中国 3362
装修资讯热点排名
装修资讯热点
