领慧助力 玩转设计 | 领慧数字量房体验活动火热来袭
99套样板房量房&设计征集ing!
装修初期,量房是一个不仅耗时耗力且繁琐精细的工作项目。在当今效率为王的市场背景下,家装,定制家居,高定等领域,往往缺乏原始的图纸,更需要重新量尺、绘图,整个过程耗时耗力,还容易缺漏或者客户变更而产生反复工作,效率低下。传统的作业方式是人工测量后手绘图纸,效率低下。部分点云建模软件,也都需要大量繁复的人工操作,未能实现“自动化”。
领慧数字量房,突破核心技术,实现“自动逆向建模”,有效解决上述需求。
领慧智能量房采用1mm级别的高精度三维激光扫描仪获取空间信息后,进行自动点云拼接,形成整个空间的点云模型。然后通过专利算法,自动建立空间3D模型和绘制CAD平面、立面图纸,设计师可以在相关图纸基础上直接开展后续工作。
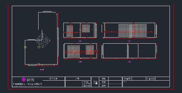
现场扫描采集空间数据
单房间点云(现场输出)
自动建立空间3D模型(量房作业当天输出.obj格式文件)
CAD平立面图(量房作业当天输出.dxf格式文件)
领慧助力,玩转设计
1.活动概况
◆开展时间:7月1日-7月31日
◆开展地区:广州、佛山
◆参与对象:家装公司、定制家居公司、整装公司、业主朋友
2.活动规则
◆通过领慧官方公众号、官网、以及直接致电登记的用户,填写工作人员提供的调研信息后,即可获取一次价值699元的数字量房服务。(仅限广佛地区前99名登记成功的用户);
◆数字量房服务包括:
1.测量工程师免费上门量房服务
2.房屋空间高精度三维扫描服务
3.扫描数据后台计算服务
4.CAD和三维模型等计算结果交付服务
◆成功预约并核实服务时间后仅可更改一次服务时间段,如更改时间段后仍无法按时赴约,则视为自动放弃本次数字量房服务机会;
◆服务完成后,用户将本次服务感受好评发至个人朋友圈,即可额外获取一次数字量房服务(广佛地区内可转赠,不抵现,6个月内有效);
3.参与方式
领慧数字空间2023年7月首推“自动逆向建模”为技术原理的数字量房服务,在广佛地区首次公开诚邀产品体验官,如果你想又快又好地完成量房工作,请联系我们预约体验数字量房服务吧!(公众号:领慧数字空间)
活动最终解释权归领慧所有
相关知识
领慧助力 玩转设计 | 领慧数字量房体验活动火热来袭
品牌战略升级!领慧智能建造正式更名为领慧数字空间!
数字量房如何在装配式装修领域应用?
天选打工人--领慧实测机器人
开门红丨领慧中标越秀--广州越建公司实测实量设备采购项目!
领慧实测机器人丨越秀--安全文明标杆工地观摩活动圆满落幕
简讯 | 领慧受邀参加金地广州新华保险大厦项目观摩会
再次入选丨领慧科技荣登2022毕马威中国领先地产科技企业50
工程版分歧终端机--领慧数字实测体检服务来啦!
喜讯丨领慧实测机器人入选广东省第一批智能建造新技术新产品创新服务典型案例
网址: 领慧助力 玩转设计 | 领慧数字量房体验活动火热来袭 http://www.zhuangxiutp.com/newsview77633.html
推荐装修资讯
- 1除了榻榻米床柜一体设计,这3 7048
- 2写拆字的房子多久会拆 拆字为 6720
- 3干湿分离卫生间尺寸 小卫生间 5797
- 4明日之后漂亮房子教程是什么 4416
- 5小改变大有不同,小熊电器煮蛋 4097
- 6手上有胶水怎么去掉 胶水 3994
- 7红厨品牌进口锅具热降温国内品 3936
- 8盼盼木门加盟条件 盼盼木门有 3645
- 9国外这些橱柜内部设计完爆国内 3445
- 10定制周刊|2022「发现中国 3362
