90后夫妻打造138㎡日式婚房,颜值爆表超漂亮!晒晒
今天分享的是一套建筑面积138平米的日式风三居室案例,房子以简洁的白色为主,搭配各种温馨的木色家具和造型,来营造出一种简约、舒适的家居氛围。房子整体的设计虽然非常简单,但给人的感觉却非常舒服,大概这就是我们所喜欢的家的样子。

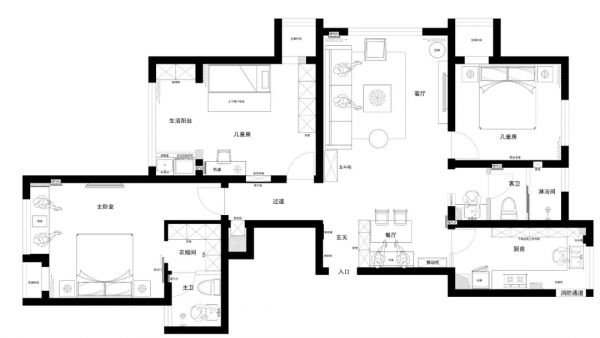
平面布置图

▲设计师在餐厅和入户门之间做上一个到顶的鞋柜,打造出了一个小玄关走廊。鞋柜的底部和中间留空,搭配另一侧的穿衣镜和挂衣钩,非常实用。

▲餐厅的餐桌也靠着鞋柜所摆放,卡座式的餐厅搭配墙面的置物架和侧方的斗柜,让餐厅内多了不少的储物空间,使用起来会更方便一些。

▲厨房内部是做了U字形的橱柜布局方案,把水槽放在靠窗的一些,灶台上方不做吊柜,再加上简单的配色方案,厨房整体给人一种温馨、明亮的感觉。▲客厅的设计也是以白色为主,搭配了一些木色的家具,电视柜的边上摆放一些绿植,可以让简单的电视背景墙看起来更不会那么单调。▲沙发和茶几的尺寸选择了刚好一家三口人使用的大小,留出更多的活动空间,用来摆放边几、摇椅和斗柜等,让客厅看起来更加宽松。

▲很喜欢这个通往卧室的走廊过道的墙面设计,在墙面做上软木板,然后挂上一些照片和小饰品,可以给人带来一种温馨感。

▲主卧室靠窗的地方做了一个小地台,方便屋主躺在这里看看书。床头背景墙上并没有做其他的装饰,简洁的白色和木色结合,搭配一些灰色作为调剂。▲儿童房的配色和主卧室基本上相同,儿童房的床是选择了高低床的款式,方便屋主陪伴孩子一起睡觉,或是为了之后的二胎做准备。

▲公卫的洗手台是被放在了卫生间的门外,更方便平时使用。设计师在这里做了半墙加上木栅栏的隔断,让它多出一些隐私性,看起来更加美观。
来源:有品家居
相关知识
90后夫妻打造138㎡日式婚房,颜值爆表超漂亮!晒晒
清华学霸夫妻43㎡多功能婚房。
红白相配欢快打造80后个性婚房
我投降!这些颜值爆表的小家电太太太值得剁手了
90后夫妻“借婚房”揭示年轻人装修痛点 父母代劳审美差异大
小夫妻整改120㎡传统婚房,玻璃代替墙
婚房装修|90㎡浪漫婚房装修效果图,用一间房做衣帽间任性!
装修新房最看重门面 室内门选的好家里颜值爆表
小卧室这么装,让你家颜值爆表!现在都流行这么做!
婚房让别人住有忌讳么 婚房空着用什么代替
网址: 90后夫妻打造138㎡日式婚房,颜值爆表超漂亮!晒晒 http://www.zhuangxiutp.com/newsview14534.html
推荐装修资讯
- 1除了榻榻米床柜一体设计,这3 7048
- 2写拆字的房子多久会拆 拆字为 6720
- 3干湿分离卫生间尺寸 小卫生间 5797
- 4明日之后漂亮房子教程是什么 4416
- 5小改变大有不同,小熊电器煮蛋 4097
- 6手上有胶水怎么去掉 胶水 3994
- 7红厨品牌进口锅具热降温国内品 3936
- 8盼盼木门加盟条件 盼盼木门有 3645
- 9国外这些橱柜内部设计完爆国内 3445
- 10定制周刊|2022「发现中国 3362
